-
Telefon: 503 037 072
-
E-mail: biuro@projektowaniecad.com.pl
Tworzenie Rzutu Piętra i Dodawanie Opisów
Generowanie i Aktualizowanie planów
1.Najedź na rzut „Floor 0” i kliknij prawym przyciskiem, wybierz z rozwijalnej listy „Aktualizuj”.

2.Aby zobaczyć efekt działania, ponownie najedź na „Floor 0” i wybierz „Wyświetl Rezultat Przekroju”.
3.Rzut parteru jest umieszczony na arkuszu. Upewnij się, że warstwa „Boundary_BRX_2D+Swing” jest włączona.
4.Zwróć uwagę, że skala tego przekroju jest domyślnie ustawiona na 0.02. Ten parametr może zostać zmieniony przed uaktualnieniem przekroju.

5.Kiedy Rzut parteru jest wygenerowany, rezultat przekroju na arkuszu jest ulokowany w Przeglądarce Projektu (zobacz w „drzewie” Arkuszy)

6.Teraz naniesiemy trochę zmian na model, a następnie uaktualnimy rzut kondygnacji.
7.W widoku przekroju modelu, zaznacz wewnętrzne drzwi i z menu QUAD wybierz narzędzie „BIM Odwróć”. ![]()

8.Następnie otwórz Panel komponentów. ![]()
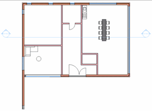
9.Przejdź do „Elementy wyposażenia”, a następnie przeciągnij meble do pomieszczeń.
10.Przejdź do widoku na arkuszu kondygnacji Piętra 0
11.Uaktualnij go. Możesz to zrobić przechodząc do widoku arkusza, następnie najeżdżając na obwiednię rzutni i wybranie narzędzia „Aktualizuj Przekrój” ![]()

12.Rzut się uaktualni.

13.Pamiętaj, aby widzieć reprezentację 2D mebli otwórz panel z warstwami i włącz na aktywną „Background_BRX_2D_Symbols”
Warstwy z adnotacją w nazwie BRX_2D są używane do zastępowania geometrii rzeczywistego przecięcia elementu – symbolami obiektów.
Dodawanie tagów do pomieszczeń
1.Kiedy masz otwarty rzut na arkuszu, najedź na obwiednię rzutni i wybierz narzędzie „Etykieta”. Etykiety zostaną automatycznie dodane.
2.Etykiety zawierają informacje o elementach , np. Etykiety pomieszczeń zawierają takie dane jak: powierzchnia pomieszczenia, numer, nazwę.

3.Etykiety BIM są w pełni edytowalne i automatycznie połączone z modelem.
4.Dodaj informacje do elementów ścian w modelu BIM.
5.Wróć z powrotem do modelu i otwórz z lewej strony „Przeglądarkę struktury”
6.Wybierz wszystkie zewnętrzne ściany i uzupełnij „Typ ściany” wpisując W-1 w panelu właściwości.

7.Przejdź do widoku arkusza z rzutem i wciśnij ikonę „Etykiety”, następnie zaznacz obwiednię rzutni i wybierz „Aktualizuj” w oknie dialogowym BIMTAG

